+86-0523-83274900
Cúpláil flanged

Cúpláil flanged

Is gléas píblíne comhraic dóiteáin é an cúpláil comhraic dóiteáin flanged a bhaineann le nasc dochta trí plátaí flange (fáinní miotail le poill bolt) agus bolt Fas10ing. Tá sé mar thréith ag séalaithe ardbhrú agus friotaíocht chreathaidh láidir, rud a chiallaíonn go bhfuil sé oiriúnach d'iarratais ar nós píblínte dóiteáin seasta agus cónascairí caidéil.
Agus tú ag nascadh le píobán, cuirtear an píobán thar an taobh amuigh den sceithphíobán, agus clampaí amháin nó níos mó a úsáidtear chun an nasc a chomhbhrú agus a dhaingniú. $ $

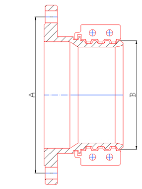
Toisí Caisiún

Mír uimh.

DIN/MM

Dial Dia

A/mm

B/mm

/

80

3 "

160

74.8

100

4 "

180

100

150

6 "

240

152

150 (Caighdeán Meiriceánach)

6 "

241.3

152

200

8 "

295

203

200 (Caighdeán Meiriceánach)

8 "

298.5

203

250

10 "

355

253

250 (Caighdeán Meiriceánach)

10 "

362

253

300

12 "

410

304

300 (Caighdeán Meiriceánach)

12 "

431.8

304

350

14 "

470

355

350 (Caighdeán Meiriceánach)

14 "

476.3

355

400

16 "

525

407

400 (Caighdeán Meiriceánach)

16 "

539.8

407

* Is féidir próisis ábhair agus monaraíochta a oiriúnú ach iad a iarraidh.
* Is féidir riachtanais eile (mar bhrú oibre, brú pléasctha, etc.) a shaincheapadh de réir mar is gá. $ $

Jiangsu jinding Teicneolaíocht Cosanta Dóiteáin, Ltd.
Bunaíodh Jiangsu Jinding Teicneolaíocht um Chosaint Dóiteáin, Ltd, atá lonnaithe i gCrios Forbartha Eacnamaíochta Jiang Su Xinghua, i 1998. Is cuideachta thionsclaíoch í a chomhtháthaíonn dearadh, forbairt, táirgeadh agus díolacháin. Tá deimhniú deimhniúcháin agus deimhniú deonach táirgí ISO9001: 2015 agus deimhniú deonach táirgí ISO9001: 2015, agus tá tuarascáil chigireachta faighte ag an Ionad Maoirseachta agus Cigireachta Cáilíochta Trealamh Dóiteáin Náisiúnta.
Déanaimid sraitheanna táirgí éagsúla a mhonarú den chuid is mó, lena n-áirítear cúpláin chomhrac dóiteáin, soic uisce, hiodrant dóiteáin, cúpláin píopaí trastomhais mhóir, agus cúpláin soláthair uisce réimse ola. Úsáidtear na táirgí seo go forleathan i gcosaint dóiteáin, i dtionscail peitriliam, ceimiceacha, míleata agus tionscail eile..
Tá cumas maith neamhspleách T&F ag an gcuideachta agus tá sraith iomlán próiseas táirgthe aici mar dhéantúsaíocht mhúnla, próiseáil táirgthe agus tástáil táirgí. Ag an am céanna, cuireann an fiontar tábhacht le riachtanais na gcustaiméirí, tuigeann go tráthúil dinimic an mhargaidh, forbraíonn agus táirgeann sé táirgí nua go leanúnach, agus buaileann sé muinín agus moladh custaiméirí nua agus seanchustaiméirí.
Seachadann an chuideachta iontaofa Cúpláil flanged agus seirbhísí gairmiúla bunaithe ar thiomantas cáilíochta agus ar chomhpháirtíochtaí comhoibríocha, ag iarraidh caidrimh chomhoibríocha inbhuanaithe a thógáil le cliaint.
27+

27 bliain de thionscal Taithí déantúsaíochta

Teastais
Scéal
Déanaimis comhrá
Just a rá hello agus tosóimid comhoibriú torthúil. Tosaigh do scéal ratha féin.
Trealamh de dhíth ar do ghnó?
Lig dár bhfoireann réitigh saincheaptha a sholáthar duit.